Baerz & Co is een landelijk samenwerkingsverband van zorgvuldig geselecteerde boutique luxury makelaars. Samen vormen wij één netwerk, met één gedeeld aanbod. De woningen die u op onze website ziet, zijn afkomstig van alle aangesloten kantoren binnen Baerz & Co. Daardoor is niet ieder object rechtstreeks door ons kantoor in verkoop, maar door een gespecialiseerde collega binnen ons netwerk. Heeft u een woning gevonden die u aanspreekt en wilt u meer informatie? Dan brengen wij u graag persoonlijk in contact met de betreffende verkoopmakelaar, zodat u direct en zorgvuldig wordt begeleid.

AMSTERDAM
Dusartstraat 24 3 - 1072 HS
Netherlands

€975,000
Living Area
103m2
Plot Size
89m2
Bedrooms
3

Description

Dusartstraat 24 3, 1072 HS AMSTERDAM

Situated in the heart of De Pijp, we are pleased to offer this well-laid-out upper-floor apartment of approximately 103 sqm, spread over multiple levels and featuring a generous rooftop terrace of approximately 30 sqm. The property comprises three bedrooms and a bright living floor with an open-plan kitchen, with the layout thoughtfully reversed to maximize natural light and privacy. A unique home offering character, space, and an exceptional rooftop terrace with 360-degree sun exposure, located in one of Amsterdam’s most sought-after neighborhoods.

Location & Accessibility
The apartment is ideally situated in the vibrant De Pijp district in Amsterdam South. Within just a few minutes’ walk you will find the famous Albert Cuyp Market, offering a wide variety of fresh produce, clothing, and more. The charming Sarphatipark is also nearby, perfect for a relaxing walk or picnic. The immediate surroundings feature an abundance of trendy cafés, restaurants, and unique boutiques, ensuring there is always something to explore. For daily groceries, several supermarkets such as Albert Heijn and Jumbo, as well as a range of specialty shops including a bakery, organic store, and wine merchant, are all within easy reach.

The property benefits from excellent accessibility: the city center can be reached within ten minutes by bike. The North/South metro line is located approximately 200 meters away, while various tram and bus stops are also close by. Stations RAI and Zuid/WTC are easily accessible, offering convenient connections throughout the city and beyond. By car, the Ring A10 can be reached quickly via exit RAI, and Schiphol Airport is approximately a 15-minute drive away. Additionally, the street experiences relatively low traffic, meaning parking is almost always available. In short, a lively and central location with an authentic Amsterdam atmosphere, where everything is within easy reach.

Layout
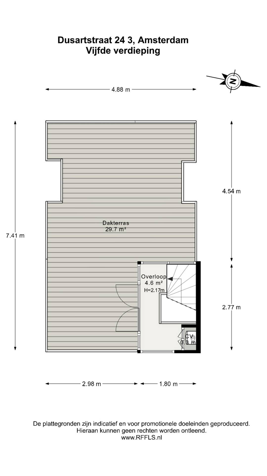
The living floor, situated on the fourth level, features a spacious and bright living room with an open-plan kitchen. The space is characterized by charming wooden beams, adding warmth and character. Large windows at both the front and rear, combined with natural light from the rooftop terrace, ensure a pleasant flow of daylight throughout the day. The open kitchen spans the full width of the wall and offers ample storage space. It is equipped with a six-burner gas stove, extractor hood, oven, dishwasher, sink with Quooker, refrigerator, freezer, and a wine climate cabinet. This floor also includes a separate toilet with double doors. From the living room, there is direct access to the west-facing balcony at the rear. A fixed staircase leads to the stunning rooftop terrace. This generous outdoor space offers complete privacy and enjoys 360-degree sun exposure, making it the perfect place to relax throughout the day. With ample room for multiple seating and lounge areas, the terrace is a true highlight of the property.

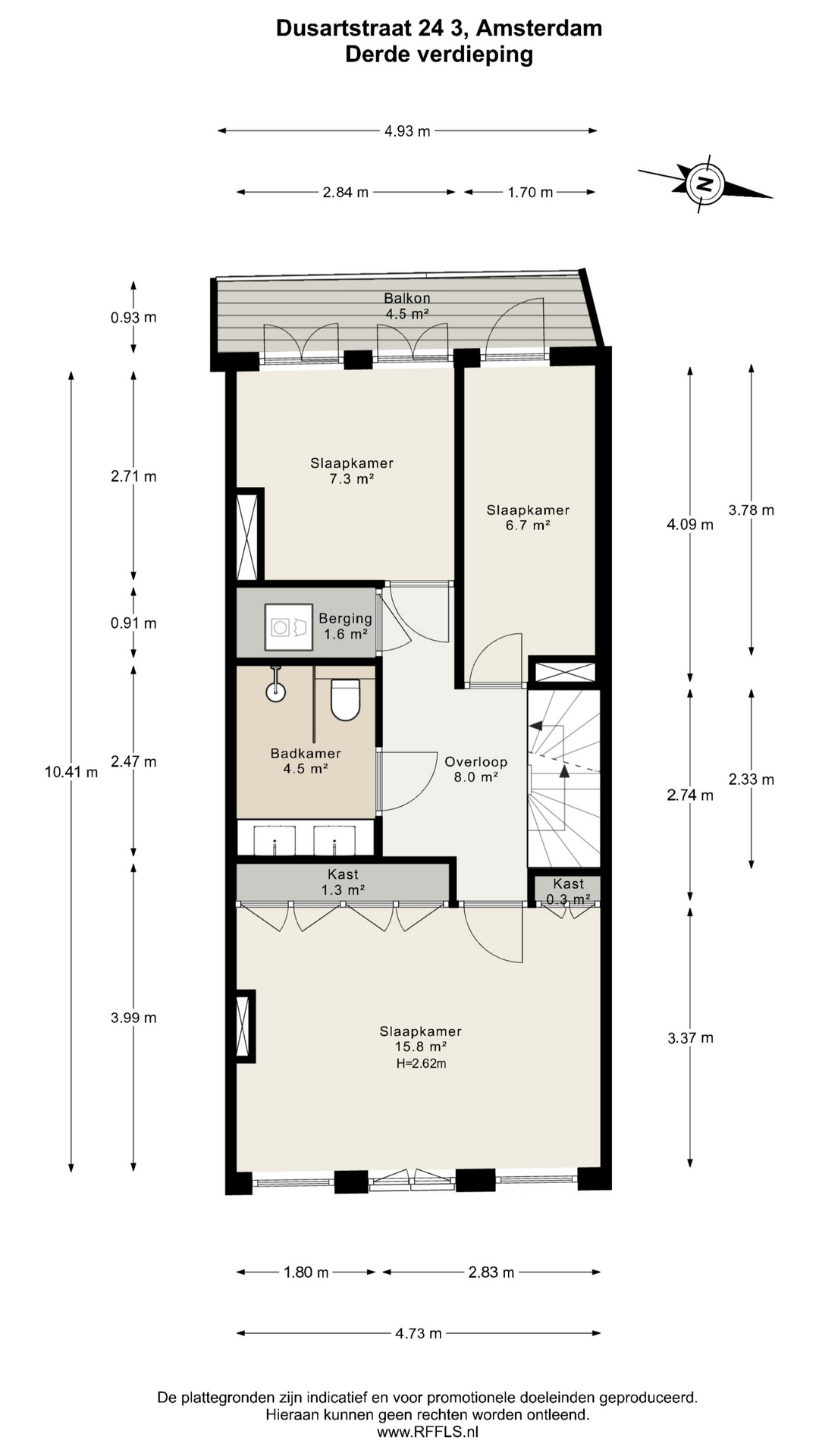
The sleeping floor is located on the third level and comprises three well-proportioned bedrooms. At the rear are two bedrooms, both with access to the balcony, ideal for use as bedrooms, home offices, or guest rooms. At the front is the more spacious master bedroom, featuring French doors with a Juliet balcony. The centrally located bathroom is fitted with a walk-in shower, double washbasin with vanity unit, and a toilet. Additionally, there is a separate utility space with connections for a washing machine and dryer, as well as practical storage on the landing. The layout has been thoughtfully reversed, placing the living area on the top floor to maximize natural light, privacy, and a sense of space.

In summary, a well-designed upper-floor apartment with an inverted layout, three full-sized bedrooms, and a spectacular rooftop terrace with 360-degree sun exposure.

Key Features
- Apartment right of 103.3 sqm (measured in accordance with the NEN2580 measurement standard);
- Rooftop terrace of 29.7 sqm (measured in accordance with the NEN2580 measurement standard);
- Three bedrooms;
- Energy label C;
- Freehold property (no ground lease);
- Foundation renewed in 2006 / 2007;
- Homeowners’ association (VvE) is self-managed;
- Monthly service charges: €150;
- Parking available via permit system;
- Delivery in consultation.

This information has been compiled by us with the utmost care. However, no liability is accepted on our part for any inaccuracies, omissions, or otherwise, nor for the consequences thereof. All stated measurements and surface areas are indicative. Buyers are responsible for conducting their own due diligence regarding all matters of importance to them. With respect to this property, the real estate agent acts on behalf of the seller. We recommend engaging a qualified (NVM) real estate agent to assist you during the purchasing process. Should you have specific requirements regarding the property, we advise you to communicate these to your purchasing agent in a timely manner and to carry out your own independent investigations. If you choose not to engage a professional representative, you will be deemed by law to be sufficiently knowledgeable to oversee all relevant matters yourself. The NVM terms and conditions apply.

Features

Transfer of ownership
Asking Price
€ 975.000
Status
beschikbaar
Acceptance
in overleg
Construction
Kind of house
Bovenwoning
Building type
appartement
Construction period
1899
Energy rating
C
Roof type
plat dak
Bedrooms
3
Bathrooms
1
Surface Areas And Volume
Living Area
103 m2
Other indoor space
0 m2
Exterior space attached to the buildinge
39 m2
Volume in cubic meters
317 m3
Plot Size
89 m2
Facilities
Mechanische ventilatie
Glasvezel kabel
Natuurlijke ventilatie
Aan rustige weg
In woonwijk
Baerz & Co Property Brochure

Brochure

Videos

Virtual Tours

VIRTUAL TOUR
Virtual Tour Dusartstraat 24 3

VeTeBe

Grotestraat 84a
5931 CX Tegelen

info@vetebe.nl
+31 77 3262600

www.vetebe.nl

Information / Viewing request

Don Willems profile image
Don Willems
Real Estate Agent

Buying a Luxury Property in Amsterdam

Amsterdam offers a cosmopolitan lifestyle defined by heritage, connectivity, and discreet luxury. Residents benefit from a robust international community, curated services, and vibrant culture. The city’s enduring appeal lies in its blend of history, sophistication, and progressive spirit.