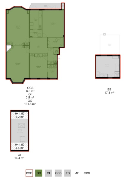
Apartment Amsterdam South Minervalaan is an elegant residence of approximately 132m², set along one of the area’s grand, tree-lined avenues. This third-floor apartment offers two spacious bedrooms, two bathrooms, and a west-facing balcony with views across lush inner gardens. Architectural heritage is evident throughout, with Berlage-era details, original en-suite doors, bay windows, and a thoughtfully preserved sense of authenticity. The living and dining rooms are bright and refined, seamlessly connected or separate by design, while the kitchen is fully appointed with modern appliances and opens directly to the balcony. Both bedrooms present generous proportions, with the main room featuring French doors to the outdoors and the second appointed with a walk-in closet.
An attic level provides a separate room of approximately 17m², complete with its own shower and private roof terrace, as well as a spacious storage area of 14m² accessible via a retractable ladder. A private lift, double-glazed Bengglas windows (added in 2023), and insulated Fermacell floors further elevate comfort.
Positioned between Stadionweg and Zuid/WTC station, residents enjoy easy access to international schools, Amsterdam’s finest parks, a vibrant local dining scene, and direct transport links to Schiphol Airport. This apartment represents understated quality and measured luxury in Amsterdam South.
Explore Amsterdam with Baerz, Your Trusted Personal Property Finder & Advisor
Navigating Amsterdam’s luxury market calls for deep local intelligence, discretion, and negotiation expertise. Top advisors provide access to private listings, clarify nuanced ownership rules, and pinpoint value in a market where opportunities seldom reach public view. Advisory teams offer rigorous asset vetting and representation, strengthening your position during negotiations, ensuring seamless transactions, and protecting your privacy throughout the process.