Baerz & Co is een landelijk samenwerkingsverband van zorgvuldig geselecteerde boutique luxury makelaars. Samen vormen wij één netwerk, met één gedeeld aanbod. De woningen die u op onze website ziet, zijn afkomstig van alle aangesloten kantoren binnen Baerz & Co. Daardoor is niet ieder object rechtstreeks door ons kantoor in verkoop, maar door een gespecialiseerde collega binnen ons netwerk. Heeft u een woning gevonden die u aanspreekt en wilt u meer informatie? Dan brengen wij u graag persoonlijk in contact met de betreffende verkoopmakelaar, zodat u direct en zorgvuldig wordt begeleid.

CAPELLE AAN DEN IJSSEL
's-gravenweg 178 - 2902 LG
Netherlands

€1,795,000
Living Area
460m2
Plot Size
3600m2
Bedrooms
N/A

Description

LIVING WITH ALLURE IN A HISTORIC PRIME LOCATION

Living on the ’s-Gravenweg means residing in one of the most characterful and sought-after locations in the region. This stately, tree-lined avenue is known for its rich history, monumental buildings, and unique combination of tranquility, space, and water. A place where exclusivity and rural charm blend seamlessly.
At this exceptional location stands this impressive detached farmhouse with accompanying coach house, situated on a generous plot of no less than 3,600 m² of private land.
This is not a standard home, but a rare property with history, character, and exceptional potential.

A UNIQUE PROPERTY WITH FUTURE PROSPECTS
The property is well known to many as the former restaurant De Dorsvlegel, contributing to the recognizability and character of this location. At the same time, it offers a unique opportunity to transform the entire property into an exclusive residential destination.
Based on the anterior agreement with the municipality, there is the possibility—under certain conditions—to change the zoning to residential and realize one detached home. In doing so, the characteristic and iconic appearance of the building will be carefully preserved, ensuring its unique identity.
This combination of history and development potential makes the property particularly appealing for buyers seeking a distinctive residence with future value.

CHARACTERISTIC ARCHITECTURE AND GENEROUS LIVING SPACE

Via your private bridge, you reach the grounds, where the atmosphere and grandeur of this location are immediately tangible. The characteristic façade, authentic details, waterfront setting, and mature greenery create an impressive whole.
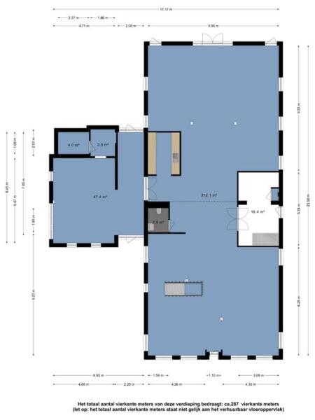
The ground floor offers an exceptionally generous floor area, previously used as a restaurant, and is highly suitable for creating a high-end residential layout. Think of spacious living areas, a living kitchen, home office or practice space—entirely customizable to your own preferences.
The upper floor features a large, open level with ample possibilities for multiple bedrooms and bathrooms. Additional spaces provide opportunities to further expand the living area and realize a unique, tailor-made living concept.

SPACIOUS PLOT WITH COACH HOUSE AND VERSATILE POSSIBILITIES

The plot of approximately 3,600 m² offers a rare combination of space, privacy, and functionality. The south-facing sunny garden, waterfront location, and green boundaries create an oasis of peace.
The detached coach house of approximately 155 m² is a valuable addition and is highly suitable as a guesthouse, office, practice space, or studio. It also offers excellent possibilities for enthusiasts of exclusive vehicles or collections.
Additionally, there is ample parking space on private grounds, making the property highly suitable for a combination of living and working.

LIVING ON THE ’S-GRAVENWEG

The ’s-Gravenweg is one of the most desirable residential locations in the region. Here, you live in a green, water-rich environment with a distinctive character, while urban amenities are within easy reach.
The center of Rotterdam is located a short distance away, and accessibility—both by car and public transport—is excellent. The immediate surroundings also offer various recreational opportunities, including walking and cycling routes.

AN EXCEPTIONAL OPPORTUNITY

This is a rare offering for those seeking a characteristic property with history, appearance, and unparalleled possibilities. A place where living, working, and life come together at a high level.

FEATURES

Year of construction: circa 1906
Plot: 3,600 m² of private land
Additional approximately 1,200 m² leased land from the municipality (€735.47 per year – 2025)
Living area: approximately 460 m²
Other indoor space: approximately 119 m²
External storage space (coach house): approximately 155 m²
Possibility to realize one detached home based on anterior agreement (subject to conditions)

DELIVERY IN CONSULTATION

INTERESTED? MAKE AN APPOINTMENT QUICKLY!
Our advice is to bring your own NVM real estate agent when purchasing your new home.

EXPLANATORY CLAUSE NEN2580
The measurement instruction is based on the NEN2580 standard. The measurement instruction is intended to apply a more uniform method of measuring to provide an indication of the usable floor area. The measurement instruction does not fully exclude differences in measurement outcomes, for example due to interpretation differences, rounding, or limitations when carrying out the measurement.

PURCHASE AGREEMENT ONLY LEGALLY VALID AFTER SIGNING
A verbal agreement between a private seller and a private buyer is not legally valid. In other words: there is no purchase. A legally valid purchase only exists once the private seller and the private buyer have signed the purchase agreement. This follows from Article 7:2 of the Dutch Civil Code. Confirmation of the verbal agreement by email or a draft of the purchase agreement sent is not regarded as a 'signed purchase agreement'.
“This information has been compiled by us with due care. However, we accept no liability whatsoever for any incompleteness, inaccuracy, or otherwise, nor for the consequences thereof. All stated sizes and surfaces are indicative.”

Features

Transfer of ownership
Asking Price
€ 1.795.000
Status
beschikbaar
Acceptance
in overleg
Construction
Kind of house
Woonboerderij
Building type
vrijstaande woning
Energy rating
A
Roof type
zadeldak
Bedrooms
0
Bathrooms
0
Surface Areas And Volume
Living Area
460 m2
Other indoor space
119 m2
External storage space
155 m2
Volume in cubic meters
1400 m3
Plot Size
3600 m2
Facilities
Aan water
Aan rustige weg
Vrij uitzicht
Beschutte ligging
Landelijk gelegen
Baerz & Co Property Brochure

Brochure

Virtual Tours

VIRTUAL TOUR
Virtual Tour 's-Gravenweg 178

Floor Plans

VeTeBe

Grotestraat 84a
5931 CX Tegelen

info@vetebe.nl
+31 77 3262600

www.vetebe.nl

Information / Viewing request

Don Willems profile image
Don Willems
Real Estate Agent

Buying a Luxury Property in Capelle Aan Den Ijssel

Capelle Aan Den Ijssel presents a blend of refined living, vibrant community, and exceptional amenities. This discreet enclave appeals to global citizens seeking privacy, service, and year-round leisure amid a dynamic Dutch landscape.