Ons kantoor is lid van Baerz & Co Luxury Homes; een internationaal platform dat exclusieve woningmakelaars met elkaar verbindt. Neem contact op met ons secretariaat voor meer informatie over het landelijke aanbod, waarvan u hieronder een selectie kunt bekijken.

Villa price on application in OIRLO

OIRLO Meerloseweg 12 - 5808 AM The Netherlands


Dirk van Santvoort profile image
Dirk van Santvoort
Real Estate Agent
+31 492 52 5552
dirk@vansantvoort.nl

Van Santvoort Makelaars
Torenallee 65
5617 BB Eindhoven
NETHERLANDS
+31 40 269 25 30
www.vansantvoort.nl
info@eindhoven.vansantvoort.nl

Living area
176m2
Plot size
29990m2
Bedrooms
4

Description

A complete equestrian facility with plenty of opportunities for the (semi)professional horse lover!

The accommodation offers plenty of possibilities thanks to the spacious detached house (suitable for lifetime living) with a very generous detached garage, a riding hall with indoor arena and reception area, and a total of 26 stables. An outdoor arena, lunging circle, horse walker and pasture complete the picture!

RESIDENTIAL HOUSE
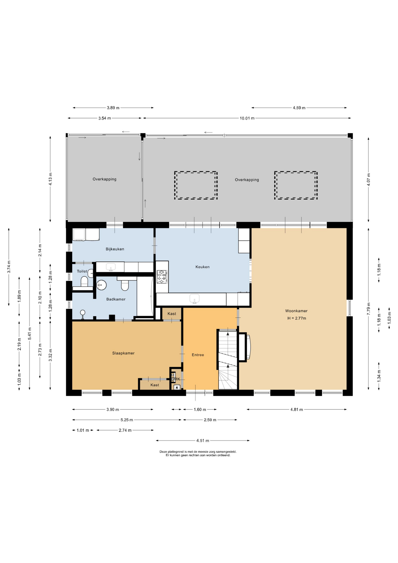
Ground floor
The entrance hall has a tiled floor, spachtelputz walls and a stucco ceiling and provides access to the living room, bedroom and meter cupboard. A fixed staircase provides access to the first floor.
The living room has a tiled floor, sleek stucco walls and a stucco ceiling with recessed lighting. Large windows extending to the floor provide plenty of light and a spacious feeling. The gas fireplace adds extra warmth and atmosphere to the room. In addition, French doors provide direct access to the covered terrace, allowing the indoors and outdoors to flow into each other. The living room provides access to the kitchen. The kitchen also has a tiled floor, stucco walls and a stucco ceiling. The kitchen is corner-shaped and equipped with various built-in appliances, such as a combination microwave, dishwasher, sink, induction hob and refrigerator. Various cupboards provide ample storage space. There is a laundry chute in the cupboard. Here too, French doors provide access to the covered terrace. The practical utility room has a tiled floor and a stucco ceiling. The room is fully tiled. The utility room is equipped with a kitchen unit with cupboards and a sink. The connections for the washing machine are located here. The toilet is also fully tiled and equipped with a floating toilet and a washbasin. The house has a bedroom with en-suite bathroom on the ground floor, making the house suitable for lifetime living. The bedroom has laminate flooring, spachtelputz walls and a stucco ceiling. Two practical built-in cupboards provide storage space. Windows provide natural light and ventilation. The spacious en-suite bathroom is fully tiled and equipped with a bath, shower, washbasin with vanity unit and a floating toilet.

1st floor:
The spacious landing with mezzanine provides access to 3 bedrooms, a bathroom and a utility/boiler room. The technical room houses the vacuum cleaning system, the heat recovery unit and the boiler. Bedrooms I and III both have laminate flooring, spray-painted walls and a spray-painted ceiling. In both rooms, storage space has been created under the sloping roof by means of practical sliding cupboards. Two windows in the front wall provide natural light. Bedroom II also has laminate flooring, spray-painted walls and a spray-painted ceiling. A dormer window provides natural light and ventilation in the room. The spacious, fully tiled bathroom is equipped with a bath, washbasin with vanity unit, shower, toilet and a designer radiator. A practical bonus in this bathroom is the handy laundry chute. The chute opens into the kitchen, so dirty laundry ends up directly downstairs, close to the washing machine and dryer. This makes doing the laundry much more efficient and provides extra convenience.

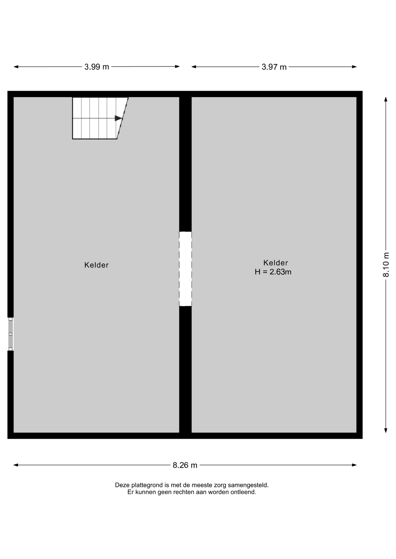
Basement:
A fixed staircase provides access to the basement under the house. This basement consists of several rooms, including a “man cave/café”, a playroom/chill-out room and a practical storage room. The versatility of these rooms offers countless possibilities and also provides a lot of extra living and storage space in the house. The man cave/café is finished with a tiled floor with underfloor heating, stucco walls and a ceiling that is partly fitted with a suspended ceiling and partly with stucco. The room is equipped with air conditioning, which adds to the comfort. This space is perfect for organising parties or cosy get-togethers. The playroom/chill-out room has a tiled floor with underfloor heating, spachtelputz walls and a stucco ceiling. This versatile space offers plenty of possibilities and can easily be converted for various other purposes, such as a hobby room, home office or gym. This room also houses the heat pump, fibre optic connection, meter cupboard with water softener and the unit for the underfloor heating. The spacious storage cellar has a tiled floor, brick walls and a stucco ceiling. Practical shelves provide storage space. The toilet is fully tiled and equipped with a toilet (Sanibroyeur) and a washbasin.

GARAGE, GARDEN & YARD
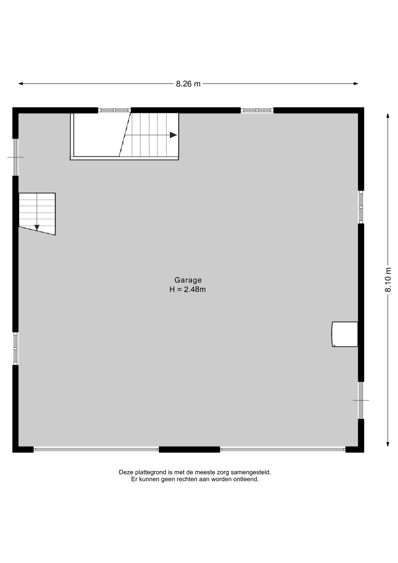
Garage:
The detached garage is constructed of masonry walls, steel trusses and a tiled roof. The fully insulated garage has no fewer than three floors, which are easily accessible via a fixed staircase.
The ground floor has a concrete floor and is equipped with practical amenities such as a sink and two charging points for electric cars. The basement houses the sprinkler system, the meter cupboard, the high-voltage connection, the inverter for the solar panels and a vehicle/goods lift. The central heating boiler (Nefit Smartline HR) is located in the attic. Solar panels have been installed on top of the garage, contributing to sustainability and energy savings. This garage not only offers plenty of space and functionality, but also modern conveniences.

GARDEN & YARD
The garden has a spacious covered terrace with sliding glass walls, so you can enjoy the outdoors all year round. From the terrace, you have a beautiful view of the garden and even the outdoor track. There is also a garden shed, a large lawn and various mature trees and shrubs. For extra convenience, the garden has a sprinkler system.
The yard is largely paved with concrete pavers. A section, the road to the garage, is finished with baked pavers. The section from the road, next to the stable and to the rear of the stable, is covered with broken asphalt. There are two driveways, including a separate driveway that provides access to the accommodation.
At the second entrance, towards the accommodation, there are two fenced animal paddocks. In addition, there is a ‘meter cupboard’ on this part of the property, which houses the connections for fibre optic, electricity, water and gas for the stable.

EQUESTRIAN ACCOMMODATION
The well-maintained equestrian accommodation consists of a detached riding hall with an indoor arena (approx. 20x40 m), a stable area with a total of 20 horse boxes, a reception area with an apartment, a second apartment and a shed/workshop.
The yard is further equipped with an outdoor arena, six outdoor stables, a horse walker, a lunging circle, pasture and a manure pit. The riding hall is constructed of masonry facades, steel trusses and an insulated roof. The facades are partially clapboard on the outside. Light-transmitting panels provide natural light. On the inside, the facades are fitted with concrete elements. The indoor arena measures approx. 20 m x 40 m and is equipped with an ebb and flow floor. There is a heather. The arena is equipped with lighting. The walls are made of concrete. A roller door in the rear facade and a pedestrian door in the side facade provide access. The stable area is equipped with no fewer than 20 horse stalls, the front walls of which are partly made of plastic and partly of galvanised steel. The stalls have concrete partition walls and rear walls and are equipped with sliding doors. At the front of the hall is the shed/workshop, which has a concrete floor and walls and a concrete slab ceiling. On the right-hand side is the staircase to the reception area and the apartment on the first floor. The spacious reception area has a PVC floor and partly brickwork/partly stucco facades. There is a kitchen unit equipped with a sink, a refrigerator and storage space. The bedroom has the same finish as the reception area. The bathroom has a shower and a washbasin. There is also a floating toilet. From the reception area, there is a beautiful view of the indoor arena. The storage room contains the connections for the washing machine, the underfloor heating unit, the central heating boiler (Nefit Topline) and the inverter for the solar panels. The straw storage at the rear of the riding hall has a concrete floor. The feed silo is located here. A roller door at the rear and a pedestrian door provide access to the yard. The roof is insulated.
A wicket door provides access to the stable. A roller door provides access to the indoor arena. Practical storage facilities are provided. Three-phase power is available and there is a high-pressure pipe for cleaning the stables. An electric roller door and a wicket door provide access to the yard. French doors provide access to the riding hall. In addition, 10 stalls are equipped with practical outside hatches. A big plus is the hayloft with handy hay hatches, strategically placed above the stables, so hay and straw can be easily thrown directly into the stalls. Furthermore, the manure drag chain contributes to extra convenience and efficiency in the maintenance of the stables. Next to the stables is a shower and toilet room for men and women. There are also 3 washrooms, which are equipped with hot and cold water. The apartment is accessible via a separate entrance located next to the tack room. The apartment has vinyl flooring, partly brickwork/partly stucco walls and a suspended ceiling. Storage space has been created under the sloping roof. The living room of the apartment is equipped with a kitchen unit. From this room, there is a view of the indoor riding arena. The bedroom has a practical built-in wardrobe. The bathroom is equipped with a shower, washbasin and toilet and is fully tiled.
The tack room has built-in cupboards. The canteen/laundry room is equipped with a kitchen unit and connections for washing appliances. There is also a practical feed storage area. French doors provide access.
OTHER FACILITIES
The yard is further equipped with an outdoor arena, a practical horse walker and a lunging circle. In addition, there are 6 outdoor stables, a manure pit and a storage room for straw. The property is further complemented by a spacious pasture divided into various paddocks. These extensive facilities ensure that the property offers plenty of opportunities for the (semi) professional horse lover! The outdoor arena measures approx. 50 m x 25 m and is equipped with an ebb and flow floor and wooden fencing. The lunging circle is fenced with wood and also has an ebb and flow floor. The horse walker is suitable for four horses and is equipped with a concrete floor and wooden fencing. There are 6 outdoor stables on the grounds. These stables are equipped with partly plastic/partly galvanised front walls with a sliding door. The roof is covered with sheet piling. The manure pit is recessed and equipped with a concrete floor and walls. Manure is removed via the manure chain. Access via the ramp. The pasture is divided into paddocks, which are fenced with wooden posts and tape. There is a central path so that you can easily reach the different paddocks.

SPECIAL FEATURES
- The property is connected to water, electricity, heat pump, sewerage and fibre optic.
- There are 41 solar panels on the roof of the house and garage. The roof of the stable is equipped with 64
solar panels.
- The house and garage are fully insulated.
- The house has an alarm system.
- The property is fully equipped with underfloor heating.
- The gas fireplace in the living room is currently not in use due to the heat pump, but the gas connection is
present.
- Air conditioning is available in the living room.
- The riding hall was built by Hoekx Stallenbouw in 2010.
- The shed/workshop has three-phase power and a high-pressure line.
- Many movable items/machines are available for purchase.
- There is a music system throughout the entire complex.
- There is a driveway leading to the house and a separate driveway leading to the accommodation.
- The entire property is zoned for ‘Agricultural / Agricultural business and farmhouse’.
- An environmental permit is available for keeping 25 horses (under 3 years old).

Features

Transfer of ownership
Price on application
Status
beschikbaar
Acceptance
in overleg
Construction
Kind of house
Eengezinswoning
Building type
vrijstaande woning
Construction period
2005
Energy rating
A_PPP
Roof type
zadeldak
Bedrooms
4
Bathrooms
2
Surface Areas And Volume
Living area
176 m2
Other indoor space
104 m2
External storage space
2314 m2
Volume in cubic meters
975 m3
Plot size
29990 m2
Baerz & Co Property Brochure

Brochure

Information / Viewing request

Videos

Photos

Floor Plans