Baerz & Co is een landelijk samenwerkingsverband van zorgvuldig geselecteerde boutique luxury makelaars. Samen vormen wij één netwerk, met één gedeeld aanbod. De woningen die u op onze website ziet, zijn afkomstig van alle aangesloten kantoren binnen Baerz & Co. Daardoor is niet ieder object rechtstreeks door ons kantoor in verkoop, maar door een gespecialiseerde collega binnen ons netwerk. Heeft u een woning gevonden die u aanspreekt en wilt u meer informatie? Dan brengen wij u graag persoonlijk in contact met de betreffende verkoopmakelaar, zodat u direct en zorgvuldig wordt begeleid.

AMSTERDAM
Cannenburg 3 - 1081 GT
Nederland

Don Willems profile image
Don Willems
Real Estate Agent
€1.600.000 k.k.
Woonoppervlakte
159m2
Perceeloppervlakte
392m2
Slaapkamers
3

Omschrijving

Cannenburg 3, 1081 GT, Amsterdam

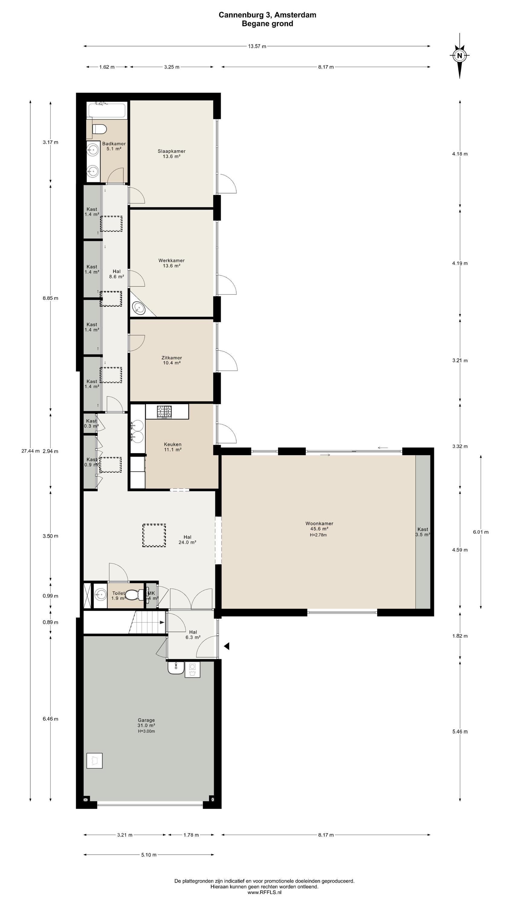
Bijzonder breed en ruim familiehuis van circa 159 m², met een royale voor- én achtertuin, gelegen in het groene Buitenveldert! De woning beschikt over een lichte en ruime woonkamer, een complete keuken voorzien van alle gemakken, drie comfortabele slaapkamers, een badkamer met ligbad en een eigen garage. Het souterrain biedt bovendien extra leefruimte en is ideaal te gebruiken als tweede woonkamer, speelkamer of werkkamer — een veelzijdige toevoeging aan het huis.

Ligging & Bereikbaarheid

Wonen aan de Cannenburg betekent genieten van rust, ruimte en groen, terwijl u zich op korte afstand van het bruisende stadsleven bevindt. De woning ligt in het gewilde Buitenveldert, een rustige en verzorgde buurt met een dorps karakter en uitstekende voorzieningen. Op loopafstand vindt u het Gelderlandplein, met een ruim aanbod aan winkels, supermarkten, luxe boetieks en gezellige horecagelegenheden. In de omgeving kunt u terecht bij diverse populaire restaurants en cafés, zoals NENI, Vascobelo en Café Zuid – ideale plekken voor een koffie in de zon, een zakelijke lunch of een ontspannen diner. Voor natuurliefhebbers zijn het Amstelpark en het Amsterdamse Bos binnen enkele minuten bereikbaar; perfect voor een wandeling, hardloopsessie of picknick. Ook aan gezinnen is gedacht: diverse scholen bevinden zich in de directe omgeving, waaronder de International School, die zich op slechts 100 meter afstand van de woning bevindt. Daarnaast ligt de woning op korte afstand van de Zuidas, het internationale zakencentrum van Amsterdam, waar werken, wonen en ontspannen naadloos samenkomen. De bereikbaarheid is uitstekend. Met Station Zuid en de A10 om de hoek bent u in no-time in het centrum van Amsterdam, op Schiphol of onderweg richting Den Haag of Utrecht. Parkeren doet u eenvoudig met een vergunning, vaak direct voor de deur.

Indeling

De woning wordt betreden via de groene voortuin. Bij binnenkomst biedt een kleine hal toegang tot de garage aan de voorzijde. Deze ruime garage, voorzien van een elektrische deur, biedt plaats aan twee auto's. De centraal gelegen hal — met een dakraam dat zorgt voor overvloedig daglicht — verbindt alle vertrekken van de woning. De woonkamer vormt het hart van het huis en is voorzien van grote raampartijen en schuifdeuren naar de royale, op het zuiden gelegen tuin van circa 116 m². Hier geniet u van veel zonlicht en privacy. De woonkamer beschikt bovendien over een airco-installatie. De keuken is uitgerust met luxe inbouwapparatuur, waaronder een 4-pits inductiekookplaat met geïntegreerde afzuiging, oven, vaatwasser en een koel-vriescombinatie. Via de langgerekte hal bereikt u de overige vertrekken. Hier bevinden zich drie goed bemeten slaapkamers, die elk directe toegang bieden tot de achtertuin. De master bedroom, gelegen aan het einde van de hal, beschikt eveneens over een airco-installatie. Aangrenzend bevindt zich de badkamer, voorzien van een dubbele wastafel met meubel, toilet en ligbad. Langs de gehele hal zijn praktische ingebouwde kasten geplaatst. Tot slot leidt een trap vanuit de hal naar het souterrain, dat door de huidige bewoners wordt gebruikt als extra woonkamer, compleet met een ingebouwde bar — een ideale ruimte voor ontspanning of vermaak.

Bijzonderheden:

- Woonoppervlak van ca. 159 m² (gemeten conform NEN2580 meetinstructie)
- Drie goed bemeten slaapkamers
- Souterrain van ca. 37 m²
- Voor- en achtertuin (totale oppervlakte van ca. 179 m²)
- Voorzien van dubbel glas
- Airco-installatie aanwezig
- Garage met elektrische deur, ruimte voor twee auto's
- Recht van erfpacht: huidig tijdvak 08-11-2021 t/m 15-09-2038. AB1955. Vaste canon: € 554,97
- Overstap eeuwigdurende erfpacht (AB2016) vastgelegd bij notaris op 8-11-2021. Jaarcanon per 16-09-2038:
€ 6.035,38 exclusief inflatie
- Asbest-, ouderdoms- en niet-zelfbewoningsclausule van toepassing
- Oplevering in overleg

Deze informatie is door ons met de nodige zorgvuldigheid samengesteld. Onzerzijds wordt echter geen enkele aansprakelijkheid aanvaard voor enige onvolledigheid, onjuistheid of anderszins, dan wel de gevolgen daarvan. Alle opgegeven maten en oppervlakten zijn indicatief. Koper heeft zijn eigen onderzoeksplicht naar alle zaken die voor hem of haar van belang zijn. Met betrekking tot deze woning is de makelaar adviseur van verkoper. Wij adviseren u een deskundige (NVM-)makelaar in te schakelen die u begeleidt bij het aankoopproces. Indien u specifieke wensen heeft omtrent de woning, adviseren wij u deze tijdig kenbaar te maken aan uw aankopend makelaar en hiernaar zelfstandig onderzoek te (laten) doen. Indien u geen deskundige vertegenwoordiger inschakelt, acht u zich volgens de wet deskundige genoeg om alle zaken die van belang zijn te kunnen overzien.

Kenmerken

Air conditioning
Overdracht
Vraagprijs
€ 1.600.000 k.k.
Status
verkocht onder voorbehoud
Aanvaarding
in overleg
Bouw
Soort woonhuis
Villa
Soort bouw
vrijstaande woning
Bouwjaar
1965
Slaapkamers
3
Badkamers
1
Oppervlakten en inhoud
Woonoppervlakte
159 m2
Overige inpandige ruimte
75 m2
Inhoud
888 m3
Perceeloppervlakte
392 m2
faciliteiten
Mechanische ventilatie
Airconditioning
Dakraam
Aan park
Aan rustige weg
In woonwijk
Baerz & Co Property Brochure

Brochure

Video’s

Plattegronden

VeTeBe

Grotestraat 84a
5931 CX Tegelen

info@vetebe.nl
+31 77 3262600

www.vetebe.nl

Informatie / bezichtigingsaanvraag

Don Willems profile image
Don Willems
Real Estate Agent

Een luxe woning kopen in Amsterdam

Amsterdam biedt een kosmopolitische levensstijl, gekenmerkt door erfgoed, verbondenheid en discrete luxe. Bewoners profiteren van een sterke internationale gemeenschap, hoogwaardige dienstverlening en een bruisende cultuur. De blijvende aantrekkingskracht van de stad schuilt in de combinatie van geschiedenis, verfijning en een vooruitstrevende geest.