Welkom bij VeTeBe Internationaal. Ook ver buiten Nederland zijn wij zeer actief. Via ons internationale netwerk binnen Baerz & Co Luxury Homes begeleiden onze Nederlandse (!) partners u vakkundig bij de aankoop van exclusieve tweede huizen. U vindt ons in 20 landen rond de Middellandse zee, de Alpen, Mexico en Dubai. Neem voor meer informatie contact op met ons secretariaat.

BARCELONA
Spanje

Chantal Cunningham profile image
Chantal Cunningham
Chief Property Advisory
€875.000
Woonoppervlakte
175m2
Perceeloppervlakte
N/A
Slaapkamers
3

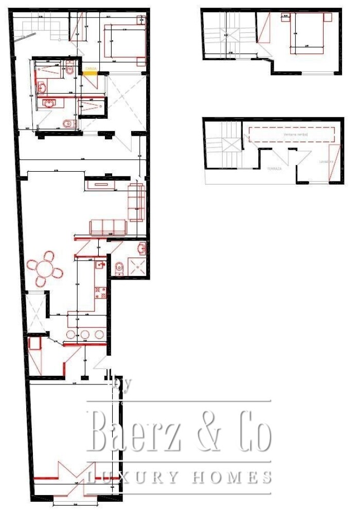
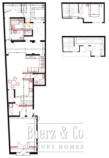
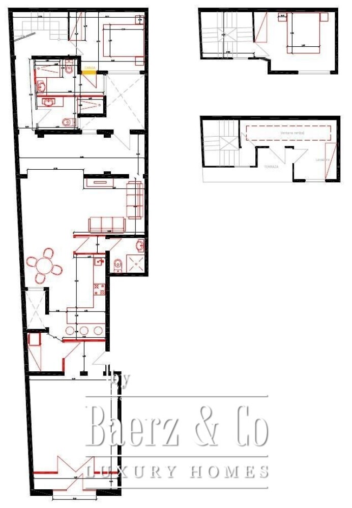
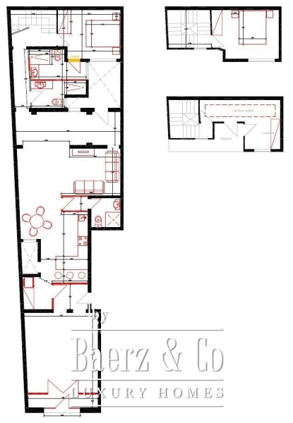
Omschrijving

Appartement Barcelona met terras bevindt zich in het hart van Eixample Derecho, op slechts een steenworp afstand van de iconische Sagrada Familia. Verdeeld over drie doordacht ontworpen niveaus biedt deze woning met 175 m² een perfecte balans tussen architectonisch karakter en eigentijds wooncomfort. De open leefruimte met dubbele plafondhoogte zorgt direct voor een gevoel van rust en ruimtelijkheid. Natuurlijke houten parketvloeren voegen warmte toe, terwijl de designkeuken met high-end apparatuur en strakke lijnen dagelijkse rituelen een luxueuze uitstraling geeft.

Drie slaapkamers en drie badkamers bieden privacy en gemak; de master suite onderscheidt zich door een Catalaans gewelfd plafond, een inloopkast en een elegante en-suite badkamer. Het privéterras op de bovenste verdieping biedt zowel geborgenheid als functionaliteit, met een subtiel geïntegreerde wasruimte voor dagelijks gemak. Airconditioning, ingebouwde bergingen en hoogwaardige afwerkingen zorgen voor een verfijnde woonervaring.

Gelegen in een historische wijk die bekend staat om zijn bewaarde doorgangen, modernistische straatverlichting en lokale charme, verbindt dit appartement u direct met de energie van Barcelona en fungeert het tegelijk als een ingetogen en stijlvol toevluchtsoord. Voor wie een luxe appartement te koop zoekt in Eixample Derecho, combineert deze woning locatie, architectonisch erfgoed en hedendaagse kwaliteit.

Ontdek Barcelona met Baerz, Uw Vertrouwde Personal Property Finder & Advisor

De kennis van een expert in het hogere segment in Barcelona is van onschatbare waarde. Inzicht in marktmechanismen, toegang tot vertrouwelijke of off-market aanbod en deskundige onderhandeling zijn essentieel. Maatwerkadvies biedt discretie, diepgewortelde connecties en risicobeheersing gedurende het hele koop- of verkooptraject, zodat kopers en verkopers hun doelstellingen realiseren.

Vermijd veelvoorkomende valkuilen

Internationale kopers verspillen vaak kostbare tijd aan dubbele, verouderde of misleidende online aanbiedingen, en ook omdat bijna 30% van de luxe woningen nooit openbaar op de markt verschijnt. Verkopersmakelaars behartigen de belangen van de verkoper, niet die van kopers. Alleen al het aanvragen van informatie over een woning kan ertoe leiden dat een verkoopmakelaar u zonder uw toestemming als “cliënt” registreert.
Met Baerz Property Finders & Advisors voorkomt u al deze valkuilen volledig. Wij werken uitsluitend in uw belang en bieden onafhankelijke vertegenwoordiging, heldere begeleiding en toegang tot alle beschikbare woningen, inclusief off-market aanbiedingen die anderen nooit te zien krijgen.

Interesse in een Personal Property Advisor?

Wij tonen u alle beschikbare woningen op één plek. Neem gerust contact met ons op om te zien hoe wij aan uw wensen kunnen voldoen en uitsluitend uw belangen zullen beschermen.

Kenmerken

Overdracht
Vraagprijs
€ 875.000
LAS
Bouw
Kamers
N/A
Slaapkamers
3
Badkamers
3
Oppervlakten en inhoud
Woonoppervlakte
175 m2
Perceeloppervlakte
0 m2
faciliteiten
A/A
Terrace
Wardrobes cupboard
Appliances
Laundry
Baerz & Co Property Brochure

Brochure

Video’s

Informatie / bezichtigingsaanvraag

Chantal Cunningham profile image
Chantal Cunningham
Chief Property Advisory

Een luxe woning kopen in Barcelona

De luxevastgoedmarkt van Barcelona verwelkomt internationale bewoners die kiezen voor stijlvol wonen, een levendige cultuur en veilige investeringskansen. Een mix van erfgoed, gemeenschapsgevoel en hoogwaardige dienstverlening wacht in deze mediterrane metropool.