Baerz & Co is een landelijk samenwerkingsverband van zorgvuldig geselecteerde boutique luxury makelaars. Samen vormen wij één netwerk, met één gedeeld aanbod. De woningen die u op onze website ziet, zijn afkomstig van alle aangesloten kantoren binnen Baerz & Co. Daardoor is niet ieder object rechtstreeks door ons kantoor in verkoop, maar door een gespecialiseerde collega binnen ons netwerk. Heeft u een woning gevonden die u aanspreekt en wilt u meer informatie? Dan brengen wij u graag persoonlijk in contact met de betreffende verkoopmakelaar, zodat u direct en zorgvuldig wordt begeleid.

LAGE VUURSCHE
Karnemelksweg 2 - 3749 AH
Nederland

Don Willems profile image
Don Willems
Real Estate Agent
€2.750.000 k.k.
Woonoppervlakte
350m2
Perceeloppervlakte
2095m2
Slaapkamers
4

Omschrijving

Wonen in een droom – een villa in het sprookjesachtige Lage Vuursche

Er zijn van die plekken die je hart direct veroveren. Lage Vuursche is er zo één. Een charmant, bijna sprookjesachtig dorpje, verscholen tussen de bossen, waar de tijd lijkt te vertragen en het leven zijn kalme ritme hervindt. In dit idyllische decor staat een villa die je niet zomaar bezoekt, maar die je beleeft. Een huis dat het gevoel oproept van vakantie in Zuid-Frankrijk, maar dan midden in Nederland.
Al bij het binnenrijden door de eigen toegangspoort verandert de sfeer. De zorgvuldig aangelegde tuin, met fruitbomen en een kruidentuin, omarmt de villa. De villa straalt een ingetogen elegantie uit die uitnodigt om verder te kijken. Aan de voorzijde wacht de veranda – een plek waar je eindeloos kunt vertoeven, in de zon of juist beschut tijdens een zachte regenbui.

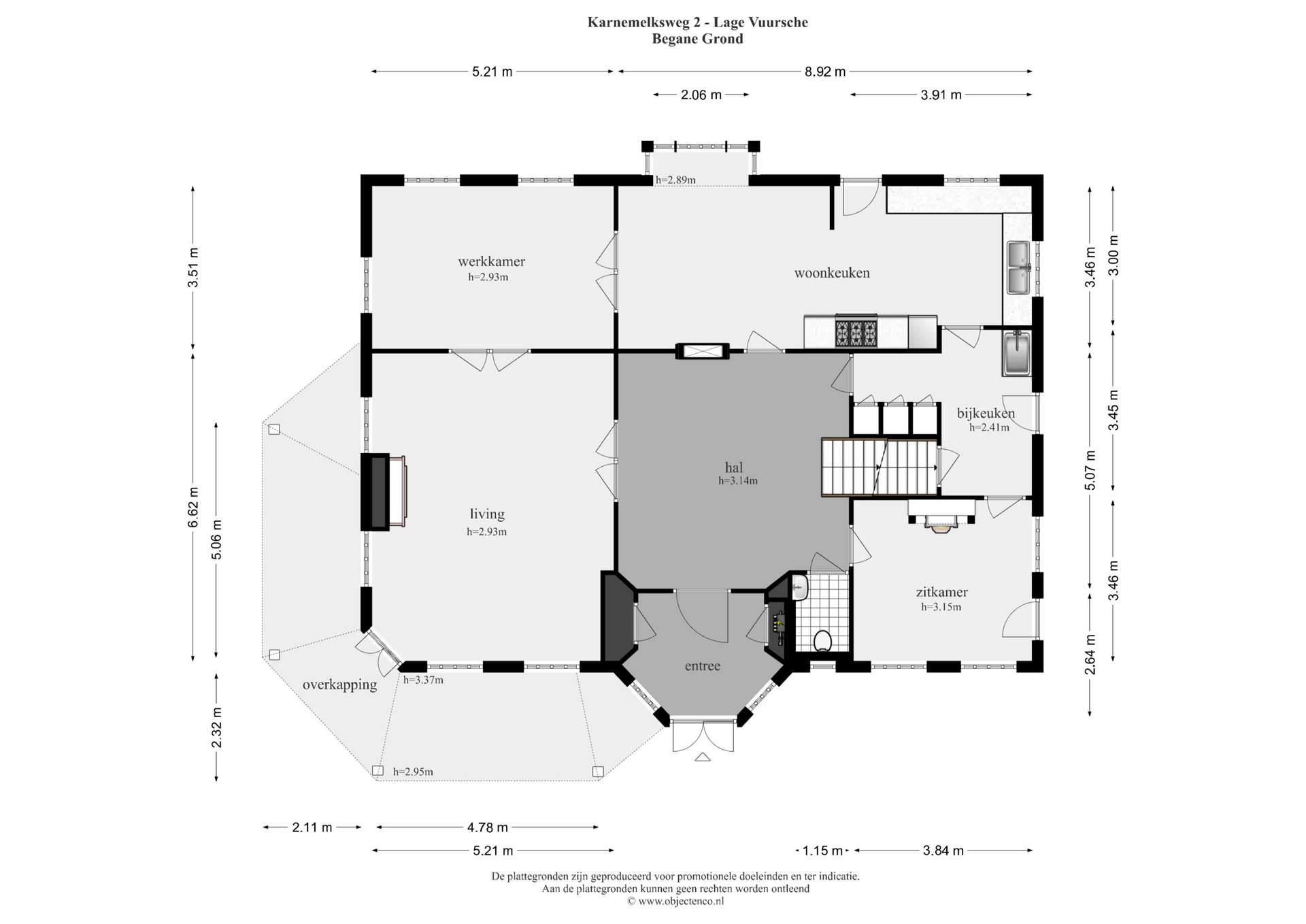
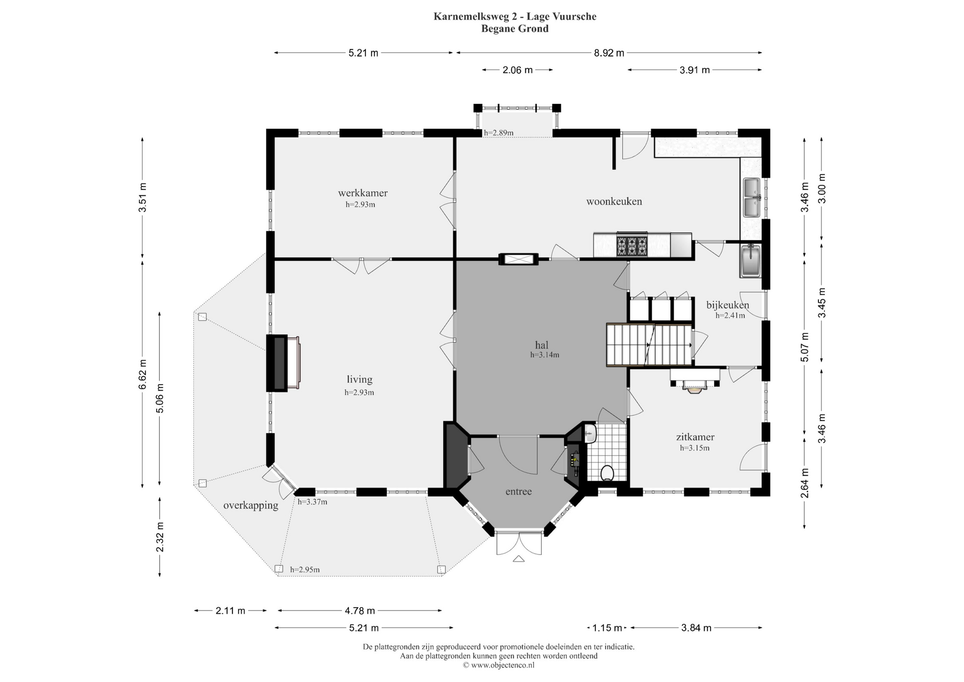
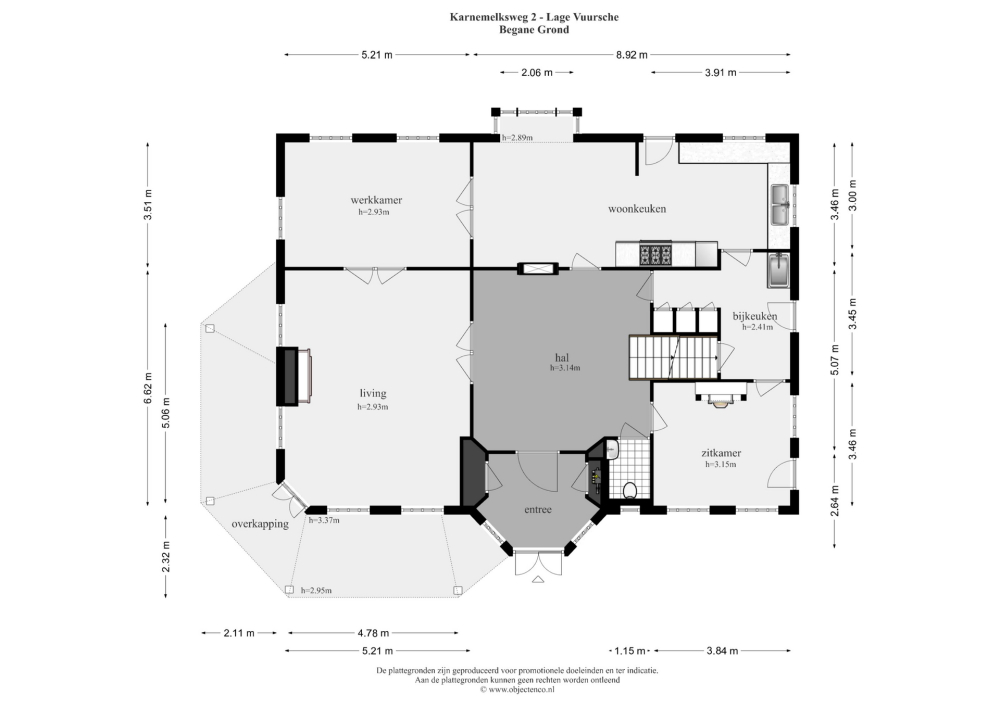
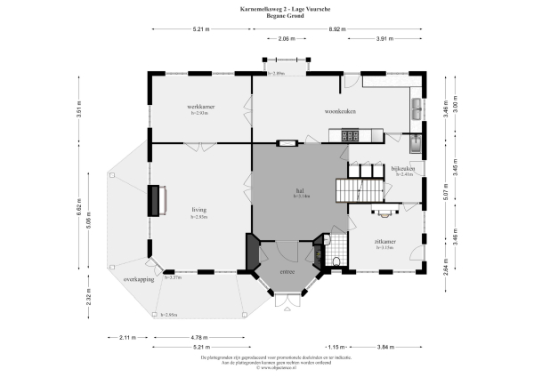
Binnen is de villa even verrassend als betoverend. Met een woonoppervlak van circa 350 m² en nog eens 150 m² in het souterrain biedt het huis een overvloed aan ruimte. De plafonds op de begane grond zijn bijna drie meter hoog, waardoor elke kamer een ademende ruimtelijkheid heeft. De statige hal met open haard en bordestrap voelt als een belofte van wat komen gaat.
Wat dit huis echt onderscheidt, is de ziel waarmee het gebouwd is. In 2012 tekende architect Van Asbeck voor het ontwerp, maar het zijn de oude, zorgvuldig verzamelde materialen die het karakter geven. Vloeren van parket die eerder in historische panden lagen, stokoude kinderspeltegels verwerkt in de plinten en bij het fornuis, deuren met een verleden, dakpannen die ooit een Utrechtse kazerne bedekten en zelfs oude kaasplanken die een nieuwe bestemming vonden. En in de keuken staat een kast uit een Amsterdams grachtenpand, die hier naadloos aansluit bij de sfeer. Elk detail ademt historie en authenticiteit, en samen geven ze de woning een bezieling die je zelden tegenkomt.

Rondom de hal bevinden zich de leefruimtes: een warme woonkamer met open haard waar de winteravonden zich vanzelf verlengen, een atelier waar licht en inspiratie samenkomen, een werkkamer waar stilte de boventoon voert en een royale eetkeuken die uitnodigt tot lange diners. In het souterrain is plaats voor een gym, een poolkamer of een wijnkelder.
De bordestrap leidt naar de eerste verdieping, waar de ouderverdieping zich uitstrekt als een privé-suite: een royale slaapkamer met uitzicht over de tuin, een luxe badkamer, een kleedkamer en directe toegang tot de wasruimte. Daarnaast zijn er nog twee slaapkamers met een eigen badkamer en een apart toilet.
Verder via de bordestrap kom je op de tweede verdieping daar bevindt zich een charmante zolderkamer met eveneens een eigen badkamer.

Wat dit huis zo bijzonder maakt, is niet alleen de royale indeling of de mooie gedetailleerde afwerking. Het is de sfeer. Het licht dat overal door de hoge ramen binnenvalt, de verfijnde details, die in elke ruimte terugkomen, de manier waarop het huis uitnodigt om niet te wonen maar om te leven.
Deze villa is geen standaard villa. Het is een huis met verhalen, gebouwd met liefde voor oude materialen en oog voor detail. Een thuis dat warmte en karakter ademt en waar elke steen, elke plank en elke tegel een stukje geschiedenis met zich meebrengt. Een plek die je niet alleen koopt, maar die je ervaart.

In het kort
• Woonoppervlak: ca. 350 m²
• Souterrain: ca. 150 m²
• Bouwjaar: 2012
• Architect: Van Asbeck
• Energielabel: A++
• Garage en eigen toegangspoort
• Fruitbomen en kruidentuin
• Meerdere open haarden
• Bijzondere details met hergebruikte historische materialen

En dan de plek. Lage Vuursche is een dorp dat tot de verbeelding spreekt: een intieme gemeenschap, omringd door bos, rijk aan historie en toch verrassend dichtbij Baarn en Hilversum en uitvalswegen. Een plek waar je de deur uitstapt en direct het groen in loopt, waar stilte een luxe is en veiligheid vanzelfsprekend.

Disclaimer:
Alle informatie waaronder doch niet uitsluitend maatvoering heeft nadrukkelijk een indicatief karakter; er kunnen geen rechten aan worden ontleend. Verrekening wegens over- of ondermaat is uitgesloten. Het schriftelijkheidsvereiste wordt van toepassing verklaard. Aanbieding vrijblijvend, oplevering in overleg.

Kenmerken

Alarm system
Overdracht
Vraagprijs
€ 2.750.000 k.k.
Status
beschikbaar
Aanvaarding
in overleg
Bouw
Soort woonhuis
Villa
Soort bouw
vrijstaande woning
Bouwjaar
2012
Energieklasse
A++
Soort dak
samengesteld dak
Slaapkamers
4
Badkamers
3
Oppervlakten en inhoud
Woonoppervlakte
350 m2
Overige inpandige ruimte
150 m2
Gebouwgebonden buitenruimte
29 m2
Inhoud
1740 m3
Perceeloppervlakte
2095 m2
faciliteiten
Mechanische ventilatie
Alarminstallatie
Tv kabel
Rookkanaal
Aan rustige weg
Vrij uitzicht
Beschutte ligging
In bosrijke omgeving
Baerz & Co Property Brochure

Brochure

Video’s

Plattegronden

VeTeBe

Grotestraat 84a
5931 CX Tegelen

info@vetebe.nl
+31 77 3262600

www.vetebe.nl

Informatie / bezichtigingsaanvraag

Don Willems profile image
Don Willems
Real Estate Agent

Een luxe woning kopen in Lage Vuursche

Lage Vuursche biedt veeleisende kopers een harmonieuze mix van gemeenschap, rust en stijlvolle levenskwaliteit. Erfgoed, hoogwaardige voorzieningen en internationale bereikbaarheid vormen een uitnodigende, discrete omgeving voor wie het verschil zoekt.