Baerz & Co is een landelijk samenwerkingsverband van zorgvuldig geselecteerde boutique luxury makelaars. Samen vormen wij één netwerk, met één gedeeld aanbod. De woningen die u op onze website ziet, zijn afkomstig van alle aangesloten kantoren binnen Baerz & Co. Daardoor is niet ieder object rechtstreeks door ons kantoor in verkoop, maar door een gespecialiseerde collega binnen ons netwerk. Heeft u een woning gevonden die u aanspreekt en wilt u meer informatie? Dan brengen wij u graag persoonlijk in contact met de betreffende verkoopmakelaar, zodat u direct en zorgvuldig wordt begeleid.

RHENEN
Verlengde Oude Veenendaalseweg 26 - 3911 XC
Nederland

Don Willems profile image
Don Willems
Real Estate Agent
Price on request
Woonoppervlakte
267m2
Perceeloppervlakte
6060m2
Slaapkamers
3

Omschrijving

Wilt u luxe en rustig wonen midden in het groen? In deze prachtige vrijstaande villa aan de Verlengde Oude Veenendaalseweg 26 kan dat! Op een van de mooiste locaties van Rhenen staat deze in 1995 gebouwde villa met maar liefst 267 m² aan woonoppervlak. Een royale woonkamer, ruime keuken, drie grote slaapkamers, twee badkamers en twee balkons maken deze woning met bijzondere vorm uniek. Door de grote ramen hebben alle kamers veel lichtinval en een prachtig uitzicht op de groene omgeving. De fraai aangelegde achtertuin ligt op het zuidoosten en biedt volop zon en privacy om van te genieten. Er zijn vele mogelijkheden met of rondom deze woning en perceel, zo is er ruimte voor bijvoorbeeld het houden van een paard, pony of kleinvee. Kortom, een fantastische plek voor gezinnen of mensen die houden van ruimte en het buitenleven!

De woning bevindt zich op een ruim perceel midden in de natuur, aan de rand van het bos, op een van de meeste geliefde plekjes van Rhenen. De omliggende bossen maken het geweldig om hier te wonen. Bovendien is een basisschool op loopafstand en bent u snel in het gezellige centrum van Rhenen. Dankzij de centrale ligging zijn uitvalswegen als de A15 en de A12 nabij. Hier woont u midden in de natuur, maar met alle voorzieningen in de buurt.

Indeling van de woning
Begane grond
U komt binnen in een ruime, lichte hal die toegang geeft tot de woonkamer, een werkkamer, toiletruimte, meterkast (21 groepen + glasvezel) en de trapopgang. De werkkamer is ideaal en perfect bereikbaar om bijvoorbeeld klanten te ontvangen. De royale woonkamer heeft een bijzondere indeling, waardoor u gemakkelijk verschillende zithoeken kunt creëren. De grote ramen rondom bieden een prachtig uitzicht op de tuin en zorgen voor veel licht. Een sfeervolle gashaard voegt extra warmte toe. Via een dubbele schuifpui loopt u zo de zonnige achtertuin in. Aan de zonnige kant zorgen screens voor extra comfort. De ruime keuken met een eigen deur naar de tuin is ideaal voor het bereiden van maaltijden. Aangrenzend aan de keuken vindt u een bijkeuken met een aanrecht voorzien van spoelbak en aansluitingen voor de wasmachine en droger. De gehele benedenverdieping is voorzien van een natuurstenen vloer met vloerverwarming. In de woonkamer bevindt zich ook een airco.

Keuken
De royale, U-vormige keuken is nog maar een paar jaar oud (2020) en voorzien van hoogwaardige apparatuur. Dankzij de ruime opzet en praktische indeling is deze keuken van alle gemakken voorzien. U beschikt over een groot natuurstenen werkblad, een vijfpits kookplaat, bakoven, plafondunit afzuigkap, vaatwasser, grote koelkast, een grote vriezer en veel opberg-/kastruimte. Deze moderne keuken biedt volop ruimte om uitgebreid te kokerellen. Bovendien heeft u vanuit de keuken een prachtig uitzicht op de zij- achtertuin en directe toegang tot het terras.

Eerste verdieping
De overloop geeft toegang tot drie slaapkamers en een badkamer. De royale masterbedroom beschikt over een eigen en suite badkamer en is uitgerust met airconditioning voor extra comfort. De dubbele openslaande deuren van de slaapkamer geven u toegang tot een balkon, waar u een prachtig weids uitzicht heeft op de groene tuin. Grenzend aan de slaapkamer komt u in een ruime kastenkamer met daglicht. De tweede en derde slaapkamer liggen aan de voorzijde van het huis en beschikken beide over een ruime inbouwkast, ruimte voor een groot bed en een bureau, een openslaande deur naar het balkon aan de voorzijde en airconditioning. De schuine wanden, hoge nokken en zichtbare houten balken geven de hele verdieping een sfeervolle, karakteristieke uitstraling.

Vliering
Op de vliering (bereikbaar via een vlizotrap) heeft u veel opbergruimte en vindt u de CV-opstelling (Nefit combi 2012 IW 6).

Sanitair
Op de begane grond bevindt zich in de hal een separate toiletruimte met fonteintje. Op de eerste verdieping zijn twee badkamers aanwezig. De badkamer die grenst aan de masterbedroom is geheel vernieuwd in 2020 en is luxe uitgevoerd en voorzien van een inloopdouche, een Sunshower, een designradiator, een dubbele wastafel en een toilet. De betegelde vloer is uitgerust met vloerverwarming voor extra comfort. De tweede badkamer, afgewerkt met witte marmeren tegels, beschikt over een douche, een wastafel, toilet en designradiator.

Tuin
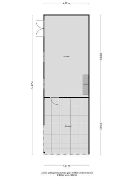
De oprit brengt u naar het prachtige perceel omzoomd door planten en bomen. De weelderige achtertuin op het zuidoosten biedt een groen en open landschap. Met een groot gazon hebben kinderen hier alle ruimte om te spelen of geniet u van de rust, zon en privacy. Een bestraat terras aan het huis biedt een schitterend uitzicht over de tuin. Daarnaast is er een tweede, overdekt terras, waar u op warme dagen in de schaduw kunt ontspannen. Dit terras is onderdeel van de in 2022 nieuw gebouwde kapschuur met bergruimte voor tuingereedschap, tuinstoelen e.d.. Een grote houten schuur (wanden en dak geïsoleerd) met carport en grote berging (2022) zorgen voor voldoende ruimte voor het stallen en/of opbergen van een auto, motor, fietsen, grasmaaier, gereedschap e.d.. Er is nog een derde schuur aanwezig welke o.a. wordt gebruikt voor het stallen van een aanhangwagen. In de tuin is een irrigatiesysteem voor besproeiing van de tuin aanwezig (middels een grondwaterpomp).

Een klein stukje grond aan de voorzijde betreft erfpacht (€ 750,- per jaar).

Algemene gegevens
- Type woning: vrijstaande villa
- Bouwjaar: 1995
- Verbouwjaar: 2020
- Aantal kamers: 5
- Aantal slaapkamers: 3, van de 4e kamer beneden (nu werkkamer) kan een slaapkamer gemaakt worden
- Aantal badkamers: 2
- Parkeerruimte: ruimschoots op eigen terrein
- Aanwezig: dakkapellen, garage/berging, veranda met berging, irrigatiesysteem middels een grondwaterpomp
- Ligging tuin: rondom
- Tuin bereik: meerdere ingangen, middels sierlijke oprit

Technische gegevens
- Warmwatervoorziening: Nefit combi IW 6 (2012)
- Verwarmvoorziening: Nefit combi IW 6 (2012)
- Vloerverwarming: deels, gehele benedenverdieping en badkamer
- Openhaard: gashaard
- Voorzieningen: airco/alarminstallatie/buitenzonwering/screens
- Mechanische ventilatie: aanwezig
- Isolatie: geheel geïsoleerd
- Dubbel glas: geheel, beneden HR++
- Glasvezel kabel, TV kabel, UTP netwerk aansluitingen
- Kozijnen: hout

WILT U EVEN BINNEN KIJKEN?

Voor meer informatie omtrent deze woning, kunt u contact opnemen met ons kantoor in Rhenen.

U bent van harte welkom! De beste indruk van deze woning krijgt u natuurlijk tijdens een bezichtiging. Wij proberen onze bezichtigingen altijd in samenspraak met verkoper en koper te plannen en nemen ruim de tijd, zodat u op uw gemak de woning kan bekijken en ervaren.
N.B. Aan de samenstelling van deze gegevens is maximale zorg besteed. Aan onvolkomenheden in de vermelde gegevens en tekeningen kunnen geen rechten en aanspraken worden ontleend.

Kenmerken

Alarm system
Garage
Overdracht
Prijs op aanvraag
Status
Available
Aanvaarding
In Concert
Referentie
07688
Bouw
Soort woonhuis
Villa
Soort bouw
Detached House
Bouwjaar
1995
Energieklasse
B
Soort dak
front gable
Slaapkamers
3
Badkamers
2
Oppervlakten en inhoud
Woonoppervlakte
267 m2
Overige inpandige ruimte
8 m2
Gebouwgebonden buitenruimte
68 m2
Externe bergruimte
60 m2
Inhoud
1020 m3
Perceeloppervlakte
6060 m2
faciliteiten
Airco
Alarm
Balcony
Cable Tv
Fluetube
Not Furnished
Garage
Garden
Internetconnection
Phoneline
Skylight
Slidingdoors
Storageroom
Not Upholstered
Ventilation
Baerz & Co Property Brochure

Brochure

Video’s

Plattegronden

VeTeBe

Grotestraat 84a
5931 CX Tegelen

info@vetebe.nl
+31 77 3262600

www.vetebe.nl

Informatie / bezichtigingsaanvraag

Don Willems profile image
Don Willems
Real Estate Agent

Een luxe woning kopen in Rhenen

Rhenen staat voor hoogwaardig wonen met rivierzicht en monumentale charme. Bewoners genieten van een hechte gemeenschap, professionele vastgoedservice en naadloze integratie met de internationale lifestyle.