Beelden zeggen meer dan 1000 woorden en deze sublieme locatie behoeft geen nadere omschrijving.
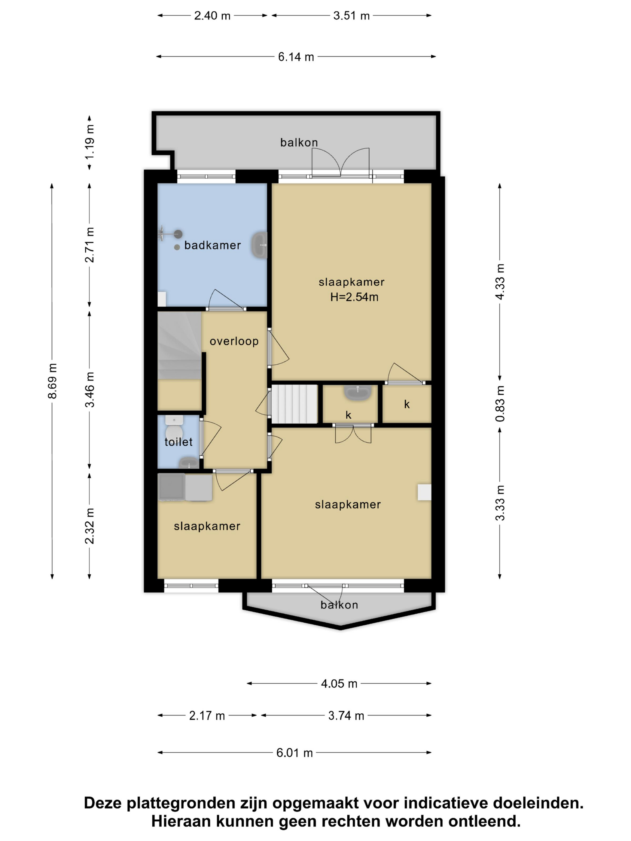
Van de 29m2 overige inpandige ruimte is 7m2 kelder en 22m2 het oppervlak van de 2e verdieping. Als de huidige dakkapel aan de achterzijde een paar cm verhoogd wordt, dan telt de 22m2 mee als gebruiksoppervlak wonen.
Door het plaatsen van een dakkapel aan de voorzijde zal het gebruiksoppervlak wonen zelfs verder toenemen, ook als de dakkapel achter niet verhoogd wordt.
Bijzonderheden:
- bouwjaar 1927
- gelegen op 226m2 eigen grond
- mogelijkheid voor het aanmeren van een sloep aan de achtertuin
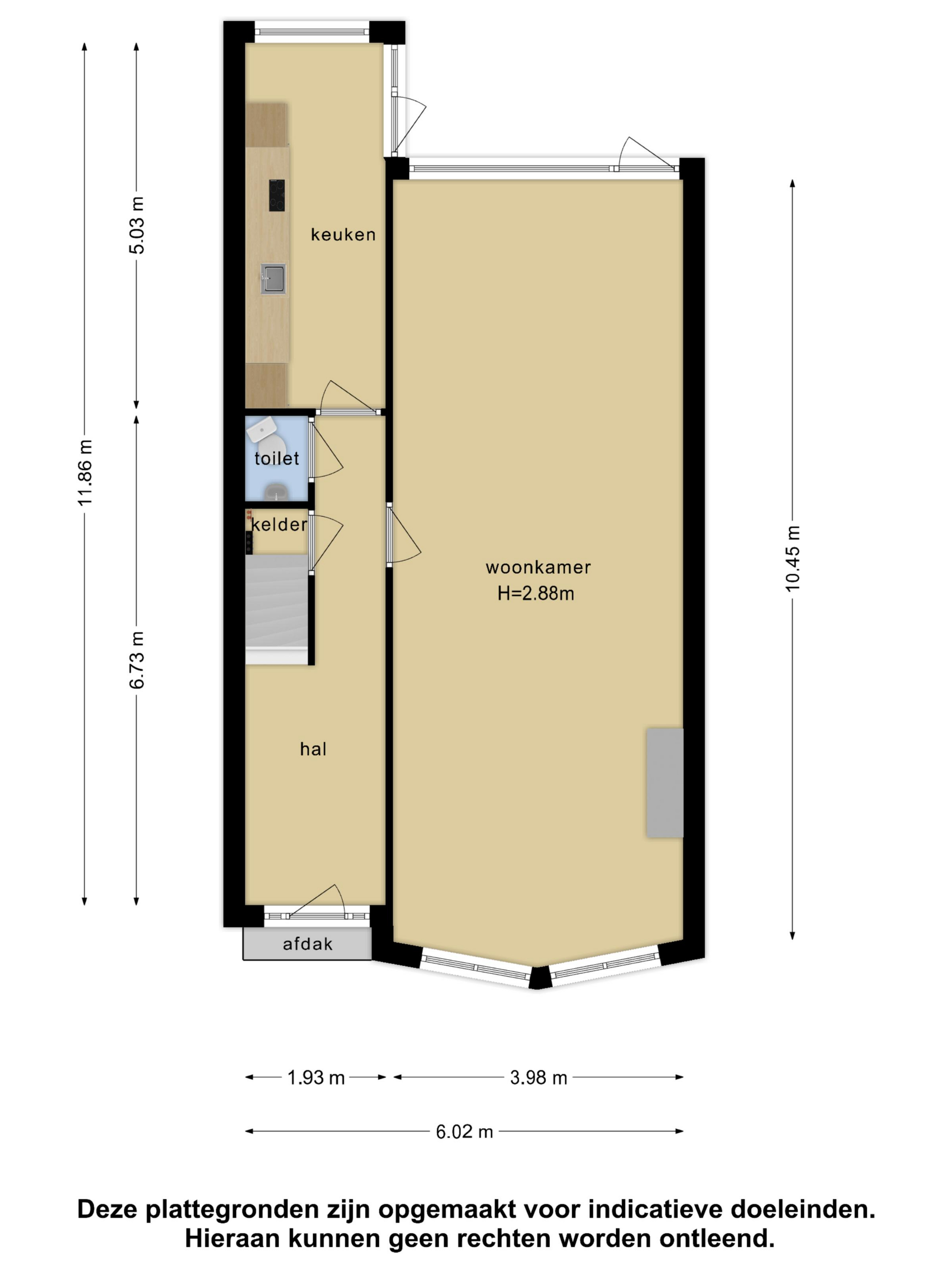
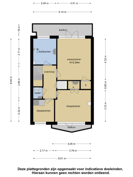
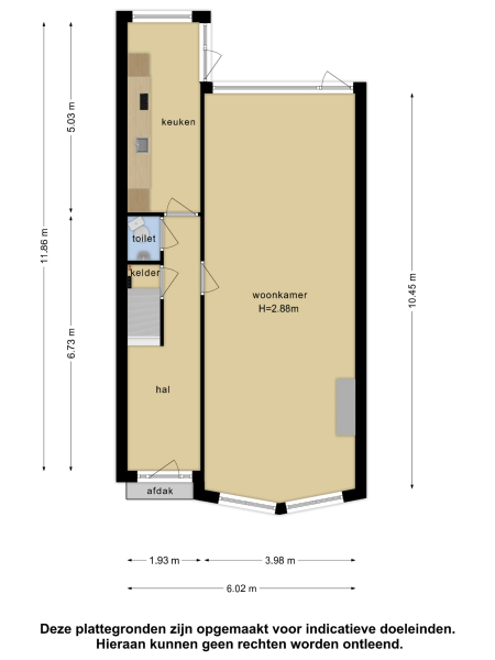
- gebruiksoppervlakte wonen ca. 119 m2 (conform NEN-2580)
- gebruiksoppervlakte overige inpandige ruimte ca. 29 m2 (conform NEN-2580)
- gebouw gebonden buitenruimte ca. 10 m2 (conform NEN-2580)
- gedeeltelijk voorzien van dubbel glas
- warm water en verwarming middels c.v.-combiketel uit 2021
- energielabel D
Oplevering in overleg.
Voor aanvullende informatie over deze woning kunt u de eigen website (adres+huisnummer) bezoeken.
J.J. van Oosten Makelaardij is de NVM-makelaar van de verkoper. Wij adviseren u uw eigen NVM-makelaar in te schakelen om uw belangen te behartigen bij de aankoop van dit object.
Aan deze aanbiedingstekst kunnen geen rechten worden ontleend.
De Meetinstructie is gebaseerd op de NEN2580. De Meetinstructie is bedoeld om een meer eenduidige manier van meten toe te passen voor het geven van een indicatie van de gebruiksoppervlakte. De Meetinstructie sluit verschillen in meetuitkomsten niet volledig uit, door bijvoorbeeld interpretatieverschillen, afrondingen of beperkingen bij het uitvoeren van de meting.