Romantischer wordt het niet, de wereld ligt aan uw voeten! Met een sloepje aan de achtertuin vaart u vanaf de Bergse Voorplas de Rotte op, om vervolgens via de Maas overal ter wereld te kunnen aanmeren. Heerlijk om over te dromen en te fantaseren.... Een dagtripje met de sloep naar Delft of een weekendje Gouda of de Biesbosch behoort zeker tot de mogelijkheden.
Ook meer lokaal is het een droom om hier te wonen. Aan een doodlopend straatje met een tuin direct aan de Bergse Voorplas en gelegen op een steenworp afstand van alle voorzieningen die de dorpskern van Hillegersberg te bieden heeft. Een avondje naar de stad? Op slechts 20 fietsminuten of nog sneller met tram 4 bent u zo bij een groot scala aan restaurants, Schouwburg, de Doelen, diverse bioscopen, etcetera.
Het herenhuis is verrassend groot en dat is mede gerealiseerd door het aanbrengen van een gehele nieuwe verdieping op zeer ruime stahoogte onder het huis en een grote aanbouw op de begane grond. Het gehele huizenblok bestaande uit 4 huizen is ruim 10 jaar geleden voorzien van een nieuwe fundering. 3 van de 4 huizen hebben een identieke uitbouw gerealiseerd aan achterzijde op de begane grond, waardoor de uitstraling homogeen is en zeer ten goede komt. Alsof het vanuit de bouw altijd zo geweest is.
Indeling:
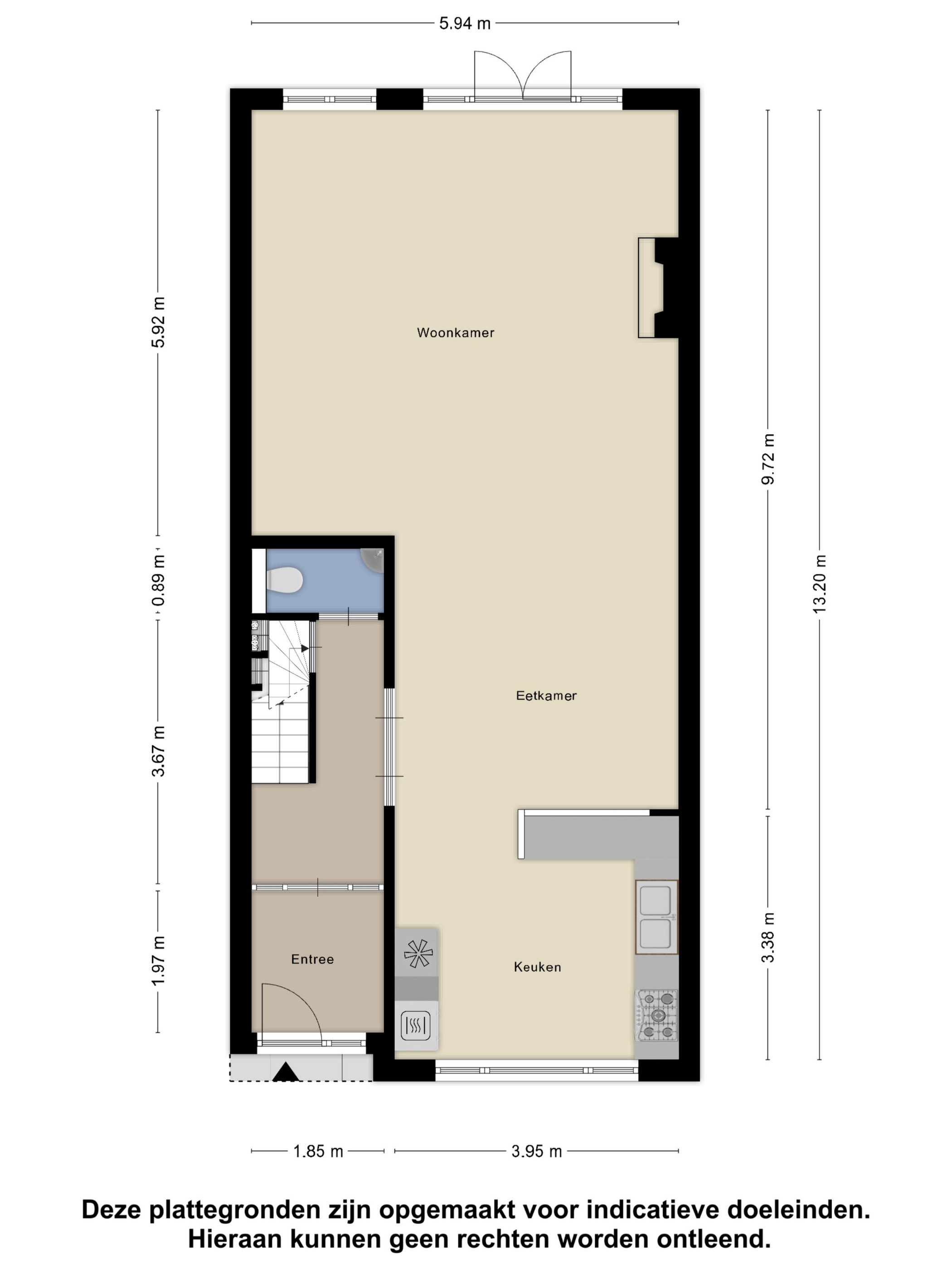
begane grond: entree, vestibule met originele marmeren lambrisering, granitovloer en glas-in-lood-raampjes en tochtdeur, hal met trapopgang, extra ruime toiletruimte met WC en fonteintje, dubbele deuren naar de living en woonkeuken, oorspronkelijk zat de keuken aan de achterzijde, maar thans bevindt de open keuken zich aan de voorzijde, waardoor de uitgebouwde woonkamer een breedte van bijna 6 meter heeft over de gehele breedte van het huis, de woonkamer is voorzien van een goed gepositioneerde gashaard waar je lekker omheen kunt zitten. Middels 2 Sola-tubes komt er verrassend veel extra daglicht in de woonkamer. Vanuit de zitkamer geven openslaande deuren toegang tot het onderheide terras en de achtertuin (eveneens grotendeels onderheid) met o.a. een terras/vlonder aan het water waar je heerlijk kunt vertoeven. aan de steiger is er plek voor 1 sloep/boot.
Eerste verdieping: brede overloop met separaat toilet v.v. WC en fonteintje, hoofdslaapkamer achterzijde met vaste kastenwand, en suite badkamer en openslaande deuren naar het royale dakterras. De badkamer is v.v. WC, douche, duo-hoekligbad en wastafelmeubel. Voorts zijn er nog 2 slaapkamers aan de voorzijde.
2e verdieping: overloop met eveneens een separaat toilet, slaapkamer achterzijde voorzien van dakkapel en kastenwand waar zich tevens de CV bevindt, slaapkamer voorzijde met dakkapel, 2e badkamer v.v. ligbad met douche, wastafelmeubel en plaats voor een wasmachine en droger naast elkaar.
Souterrain: volwaardige verdieping met een comfortabele hoogte, multifunctioneel te gebruiken als domein van de kinderen, kantoor aan huis, thuisbioscoop, gastenverblijf, etcetera. Er bevindt zich een 3e badkamer voorzien van douche, toilet en wastafel. Aan de voorzijde bevindt zich een bergruimte cq. klusruimte. aan de achterzijde is er toegang tot de achtertuin.
Achtertuin: gelegen op het noordoosten, maar vanwege de diepte van ruim 20 meter vanaf de uitbouw begane grond biedt de tuin het overgrote deel van de dag zon. De achtertuin loopt wat tabs toe, begint bij het huis met een breedte van ca. 6 meter en bij de waterkant ca. 3 meter.
Bijzonderheden;
- bouwjaar 1927
- gelegen op 197m2 eigen grond
- energielabel B
- funderingsherstel (paalkopverlaging) uitgevoerd in 2013/2014, gezamenlijk het het hele huizenblok
- gebruiksoppervlakte wonen ca. 234 m² (conform NEN2580 meting)
- gebruiksoppervlakte gebouwgebonden buitenruimte ca. 18 m² (conform NEN2580 meting)
- geheel voorzien hardhouten kozijnen (uit 2001) bezet met dubbel glas
- centrale verwarming en warm water middels c.v.-combiketel
- de badkamer in het souterrain is v.v. warm water middels een elektrische boiler
- 14 zonnepanelen aanwezig, geplaatst in 2015
Oplevering in overleg/kan spoedig.
Voor aanvullende informatie over deze woning kunt u de eigen website (adres+huisnummer) bezoeken.
J.J. van Oosten Makelaardij is de NVM-makelaar van de verkoper. Wij adviseren u uw eigen NVM-makelaar in te schakelen om uw belangen te behartigen bij de aankoop van dit object.
Aan deze aanbiedingstekst kunnen geen rechten worden ontleend.
De gebruiksoppervlakte van de woning is opgemeten conform de branchebrede meetinstructie (BBMI). De BBMI is gebaseerd op de NEN2580. De BBMI is bedoeld om een meer eenduidige manier van meten toe te passen voor het geven van een indicatie van de gebruiksoppervlakte. De meetinstructie sluit verschillen in meetuitkomsten niet volledig uit, door bijvoorbeeld interpretatieverschillen, afrondingen of beperkingen bij het uitvoeren van de meting.